用途:
本产品是我们根据市场需要与有关设计院合作开发的系列产品,是物料输送系统中实现物料快速换向的理想设备,广泛应用于建材、冶金、矿山、轻工、电力、粮食等行业固体颗粒和粉状物料的输送。
特点:
该产品采用优质碳素钢板焊接结构、具有体积小、重量轻、阻力小等特点。采用电液推杆驱动,运行平稳、故障率低、可以快速切换物料流向,也可以接受调节或变送单元信号进行自动控制。
工作原理:
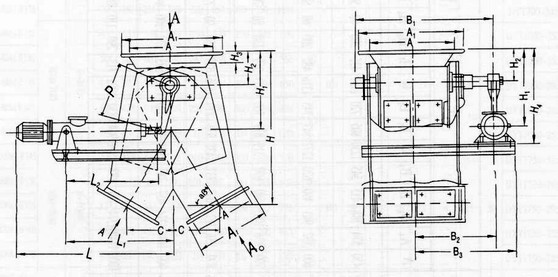
该产品主要由阀体、阀轴、阀板、曲柄机构、电液推杆等组成,工作时电液推杆的直线往复运动通过曲柄带动阀轴、阀板作一定角度的摆动,从而输送物料、控制物料的流向及流量。
主要性能参数:
适用介质含尘固体颗粒或粉料电源电压380V50Hz
适用温度≤350℃调节特性常规情况二位开关式
电液推杆型号DYT系列 特殊情况4-20mA电信号
-
DSF-□A(B)□型电液动三通分料器



2.DSF-□C(D、E)□型电液动三通分料器


3.DSF-□F□型电液动三通分料器

4.DCSF-□-□型电液动三通分料器
产品特点
DCSF型电液动船式三通分料器,采用船式溜槽结构,使物料更加畅通;增装导向辊,保持较小的负角间隙,有效的防止物料进入间隙内;进煤有“漏斗”状护架,使物料直接进入船体内。由于采用拼装结构,维修也比较方便。

5.DBSF-□-□型电液动三通分料器
产品特点
DBSF型摆动三通分料器采用内套筒换向结构,使物料与三通壳休分离, 这样就不会在壳壁上积料或结疤、不存在卡住套筒转动不灵活的问题,也不会出现漏料、混料现象。 操作灵活、省力。

6.D4F-□-□型电液动四通分料器

电液动三通分料器技术参数表(F型)
